logo
下載App
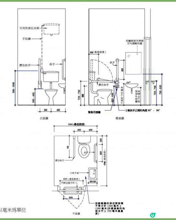
香港的無障礙設計有什麼法例要求?(扶手篇)
香港的無障礙設計有什麼法例要求?(扶手篇)
香港的無障礙設計有什麼法例要求?(扶手篇)
香港的無障礙設計有什麼法例要求?(扶手篇)
香港的無障礙設計有什麼法例要求?(扶手篇)
香港的無障礙設計有什麼法例要求?(扶手篇)
即睇更多社群帖文

香港的無障礙設計有什麼法例要求?(扶手篇)

1